紫棠园高层c户型图139方4室2厅2卫-米兰体育

紫棠园
  • 全部
  • 139㎡ 本期
  • 139㎡ 本期
  • 176㎡ 本期
  • 131㎡
  • 108㎡
  • 4室2厅2卫
    • 测评图
    • 户型图
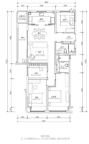
    4室2厅2卫 高层
    c户型 | 建面:约139㎡
    整体评级

    户型评级

    基础评级

    优秀

    空间评级

    基础评级

    120㎡

    套内面积

    (含赠送)

    110.8㎡

    套内面积

    (不含赠送)

    86%

    得房率

    (含赠送)

    80%

    得房率

    (不含赠送)

    9.2㎡

    面积赠送

    4室2厅2卫

    厅室配置

    优秀

    空间评级:极好

    客餐厅

    35.9方 优秀

    主卧

    20.5方 极好

    次卧1

    10.2方 良好

    次卧2

    9方 良好

    书房

    14.3方 极好

    厨房

    8.2方 极好

    主卫

    4.6方 优秀

    客卫

    3.6方 良好

    阳台

    8.4方 优秀

    400-999-1021 转 9593

    更多开盘、户型、优惠信息,免费致电售楼处

    优惠活动

    立即报名

    立即报名

    周边相似户型推荐
    周边楼盘户型图
    周边楼盘动态
    米兰体育 钱塘区区 紫棠园 紫棠园户型

    杭州紫棠园楼盘,售楼处电话:400-999-1021 转9593,楼盘/项目地址:东至怀柔巷绿化,南至上沙渠绿化,西至幸福南路绿化,北至学林街规划绿化 东至怀柔巷绿化,南至上沙渠绿化,西至幸福南路绿化,北至学林街规划绿化。提供特惠房价、钱塘区楼盘产权年限、户型图、样板间、vr航拍、预售证、周边配套设施和地图交通、楼面价、销售情况、等最新消息。

    紫棠园建面120方4室2厅2卫户型,套内面积110.8方,得房率80%,赠送面积9.2方,含赠送得房率86%,空间评级为优 !

    免责声明:本网站作为房产信息聚合类导航网站,仅为方便广大用户掌握信息而提供一站式无偿浏览、查阅的功能,所载内容仅供参考,网站不声明或保证所发布信息的真实性,准确性和完整性,最终信息以售楼处及政府部门登记备案为准,请谨慎核查。
    无强行推销不泄露用户手机号
    确认预约
    网站地图