融创杭曜之城户型图-米兰体育

融创杭曜之城
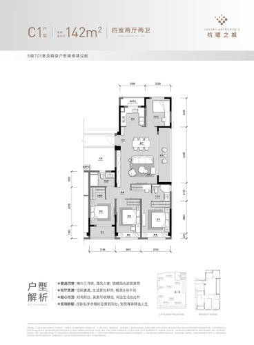
全部户型
一房一价表
周边楼盘户型图
米兰体育 钱塘区区 融创杭曜之城 融创杭曜之城户型
免责声明:本网站作为房产信息聚合类导航网站,仅为方便广大用户掌握信息而提供一站式无偿浏览、查阅的功能,所载内容仅供参考,网站不声明或保证所发布信息的真实性,准确性和完整性,最终信息以售楼处及政府部门登记备案为准,请谨慎核查。
无强行推销不泄露用户手机号
确认预约
网站地图