祥生湛景·江山云樾府高层e户型图128方4室2厅2卫-米兰体育

祥生湛景·江山云樾府
  • 全部
  • 120㎡ 本期
  • 88㎡ 本期
  • 128㎡ 本期
  • 88㎡
  • 88㎡
  • 4室2厅2卫
    • 户型图
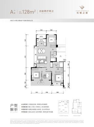
    4室2厅2卫 高层
    e户型 | 建面:约128㎡
    祥生湛景·江山云樾府西区10幢一房一价表本期 祥生湛景·江山云樾府西区8幢一房一价表本期 祥生湛景·江山云樾府西区5幢一房一价表本期
    整体评级

    优秀

    户型评级

    基础评级

    空间评级

    优秀

    基础评级

    108.8㎡

    套内面积

    (含赠送)

    98.7㎡

    套内面积

    (不含赠送)

    85%

    得房率

    (含赠送)

    77%

    得房率

    (不含赠送)

    10.1㎡

    面积赠送

    4室2厅2卫

    厅室配置

    空间评级:优秀

    客餐厅

    31方 优秀

    主卧

    18方 极好

    次卧2

    7.8方 普通

    次卧1

    11.5方 良好

    书房

    8.8方 优秀

    厨房

    5.3方 良好

    主卫

    5方 优秀

    客卫

    4.5方 优秀

    阳台

    10.4方 优秀

    玄关

    2.6方 良好

    400-999-1021 转 9869

    更多开盘、户型、优惠信息,免费致电售楼处

    优惠活动

    立即报名

    立即报名

    周边相似户型推荐
    周边楼盘户型图
    周边楼盘动态
    米兰体育 钱塘区区 祥生湛景·江山云樾府 祥生湛景·江山云樾府户型

    杭州祥生湛景·江山云樾府楼盘,售楼处电话:400-999-1021 转9869,楼盘/项目地址:杭州市钱塘区云涛北路与水云街交叉口 祥生湛景·江山云樾府营销中心。提供特惠房价、钱塘区楼盘产权年限、户型图、样板间、vr航拍、预售证、周边配套设施和地图交通、楼面价、销售情况、等最新消息。

    祥生湛景·江山云樾府建面108.8方4室2厅2卫户型,套内面积98.7方,得房率77%,赠送面积10.1方,含赠送得房率85%,空间评级为优秀!

    免责声明:本网站作为房产信息聚合类导航网站,仅为方便广大用户掌握信息而提供一站式无偿浏览、查阅的功能,所载内容仅供参考,网站不声明或保证所发布信息的真实性,准确性和完整性,最终信息以售楼处及政府部门登记备案为准,请谨慎核查。
    无强行推销不泄露用户手机号
    确认预约
    网站地图