万科朗拾湖著客厅带阳台a户型图103方3室2厅2卫-米兰体育

万科朗拾湖著
  • 全部
  • 103㎡ 本期
  • 185㎡
  • 155㎡
  • 3室2厅2卫
    • 测评图
    • 户型图
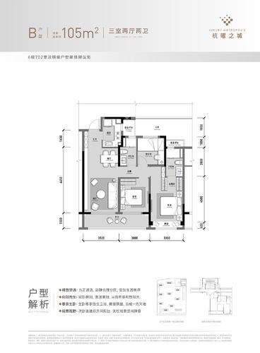
    3室2厅2卫 客厅带阳台
    a户型 | 建面:约103㎡
    整体评级

    优秀

    户型评级

    基础评级

    优秀

    空间评级

    优秀

    基础评级

    88.7㎡

    套内面积

    (含赠送)

    82㎡

    套内面积

    (不含赠送)

    86%

    得房率

    (含赠送)

    80%

    得房率

    (不含赠送)

    6.7㎡

    面积赠送

    3室2厅2卫

    厅室配置

    优秀

    空间评级:优秀

    客餐厅

    22.4方 良好

    主卧

    16.7方 优秀

    次卧1

    9.7方 良好

    次卧2

    7.2方 普通

    厨房

    6.6方 优秀

    主卫

    4.7方 优秀

    客卫

    4.8方 优秀

    阳台

    9.8方 优秀

    400-999-1021 转 9500

    更多开盘、户型、优惠信息,免费致电售楼处

    优惠活动

    立即报名

    立即报名

    周边相似户型推荐
    周边楼盘户型图
    周边楼盘动态
    米兰体育 钱塘区区 万科朗拾湖著 万科朗拾湖著户型

    杭州万科朗拾湖著楼盘,售楼处电话:400-999-1021 转9500,楼盘/项目地址:松华路和玉湖街交叉口。提供特惠房价、钱塘区楼盘产权年限、户型图、样板间、vr航拍、预售证、周边配套设施和地图交通、楼面价、销售情况、等最新消息。

    万科朗拾湖著建面88.7方3室2厅2卫户型,套内面积82方,得房率80%,赠送面积6.7方,含赠送得房率86%,空间评级为优秀!

    免责声明:本网站作为房产信息聚合类导航网站,仅为方便广大用户掌握信息而提供一站式无偿浏览、查阅的功能,所载内容仅供参考,网站不声明或保证所发布信息的真实性,准确性和完整性,最终信息以售楼处及政府部门登记备案为准,请谨慎核查。
    无强行推销不泄露用户手机号
    确认预约
    网站地图